Chers partenaires, chers clients, chers amis,

Après plusieurs années de collaboration, riches de projets, de rencontres, d’apprentissages, de complicités et de défis relevés ensemble, l’aventure de Constellations studio touche à sa fin. Ensemble, nous avons grandi, exploré de nouvelles échelles de projets, franchi des étapes et construit des lieux porteurs de sens. C’est avec beaucoup de fierté que nous clôturons ce chapitre.

Nous poursuivons actuellement les projets en cours avec Constellations mais en parallèle nous avons choisi d’écrire chacune une nouvelle page :

Soraya Haffaf porte Terres Terres - Atelier d’architecture :
soraya@terres-terres.com

Estelle Poisson développe EST. architecture :
estelle@est.archi

Nous vous invitons à nous contacter désormais à travers nos structures respectives, selon vos futurs projets, vos recherches et vos envies. Chacune poursuivra à sa manière ce qui nous a réunies : la conviction qu’une architecture peut être à la fois qualitative et durable.

Merci à vous d’avoir fait partie de cette aventure.
Nous espérons que nos futurs chemins continueront à se rencontrer.

Estelle & Soraya
















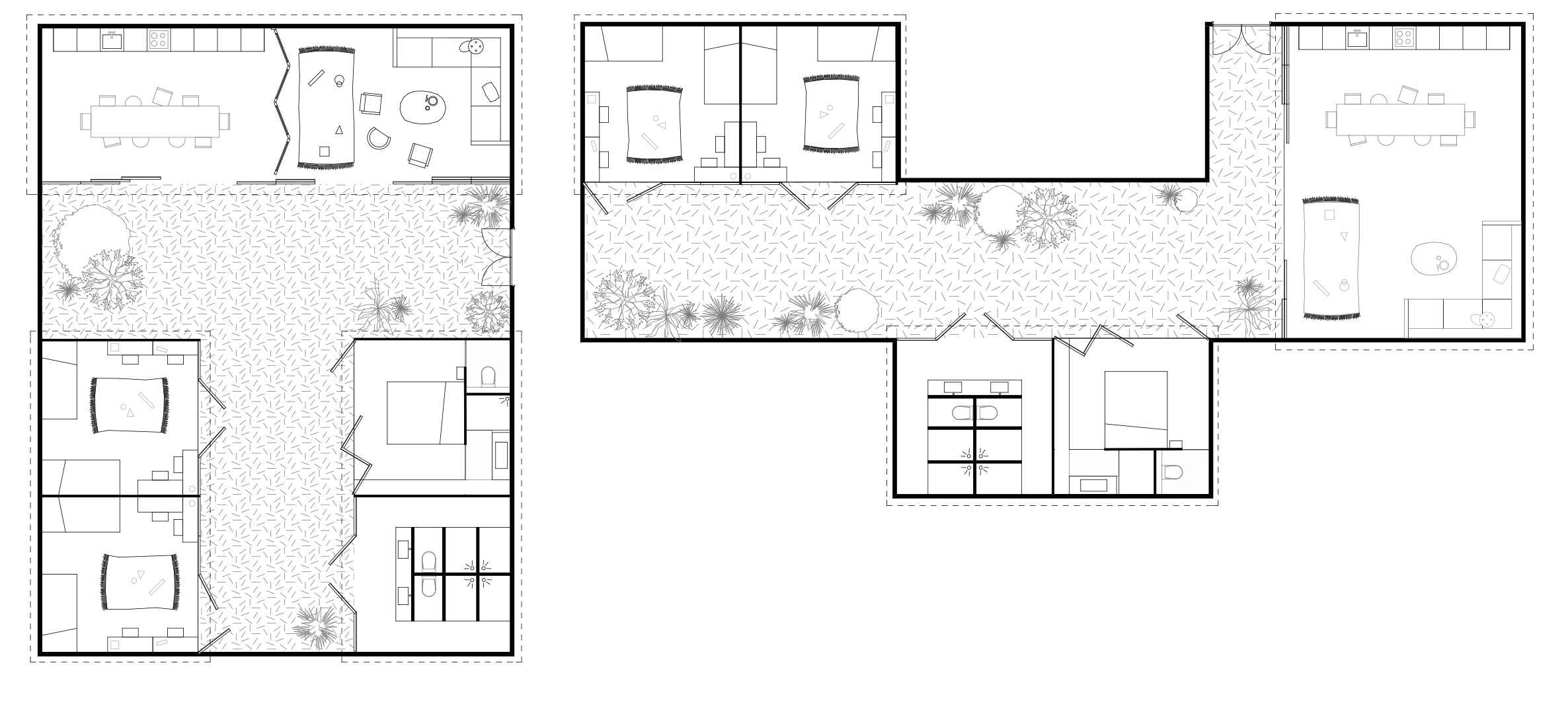
ELVIS

Zwakala Youth Village

Une nouvelle maison
pour de jeunes déplacés nigérians

Abudja, Nigeria 2018